Opis projektu
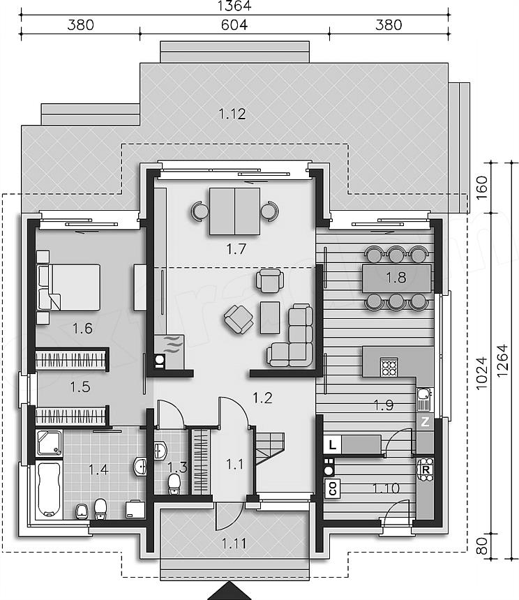
Ładny, symetryczny projekt domu, z bardzo dokładnie przemyślanym wnętrzem. Na parterze znajduje się wydzielona część z dużą sypialnią, garderobą i łazienką, która tworzy apartament dla rodziców. Natomiast dwie sypialnie dla dzieci znajdują się na poddaszu. Salon doświetlony jest dużym przeszkleniem, otwierającym dom na ogród. Kuchnia połączona jest z jadalnią w jedną dużą przestrzeń i dodatkowo wyposażona w praktyczne pomieszczenie gospodarcze. W tym domu na szczególną uwagę zwracają także okna – od frontu schody ozdabia ukośne przeszklenie, łazienka na parterze ma okno narożne, w kuchni i jadalni zastosowano nowoczesne okno panoramiczne. Wnętrza w takim domu na pewno będą dawały wiele możliwości aranżacji wręcz żurnalowych. Dostępna jest również wersja projektu z kątem nachylenia dachu 45 stopni.
