Opis projektu
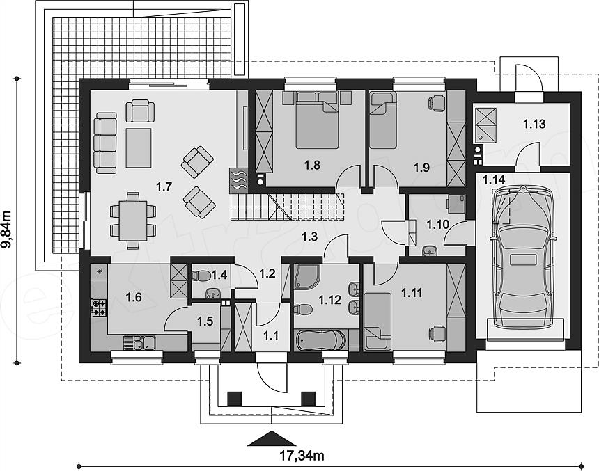
Dom parterowy z możliwością adaptacji poddasza. Budynek ma klasyczną prostą formę i nieskomplikowany dach, co korzystnie wpływa na oszczędności związane z jego budową oraz późniejszą eksploatacją. W ciągu dnia domownicy mogą relaksować się w dużym, dobrze oświetlonym salonie, połączonym z jadalnią. Z pokoju dziennego do ogrodu możemy dostać się przez duże drzwi tarasowe, jak również przez drzwi z boku budynku. Jadalnia płynnie przechodzi w kuchnię, którą po dostawieniu ścianki można przekształcić w zamkniętą. Nie zapomniano również o praktycznej spiżarni i dodatkowej toalecie, dostępnej od strony holu. Część nocna to trzy ustawne sypialnie oraz obszerna łazienka z miejscem na wannę i prysznic. Do garażu dostajemy się przez pomieszczenie gospodarcze, które może pełnić rolę pralni. Za garażem znajduje się duża kotłownia z wyjściem na zewnątrz. W domu zaprojektowano dwa rodzaje ogrzewania: GAZOWE oraz na PALIWO STAŁE. Od przyszłego inwestora zależy, które z nich wykorzysta. Prawdziwą zaletą są jednak schody zaprojektowane w korytarzu. Bez rezygnowania z któregokolwiek z pomieszczeń mamy wygodny dostęp na poddasze, które może pełnić rolę strychu, pokoju hobby, pracowni lub dodatkowych pomieszczeń mieszkalnych. Dzięki takiemu rozwiązaniu inwestor ma możliwość adaptacji poddasza w późniejszym okresie bez utraty komfortu mieszkania na parterze. Budynek zaprojektowano w oparciu o najnowsze przepisy prawa budowlanego, z dużą dbałością o jego wpływ na środowisko naturalne. Uwaga! Dokumentacja Projektowa nie zawiera elementów małej architektury takich jak: donice, podesty, altany, grille ogrodowe, murki, pergole, a także innych elementów wizualizacji, takich jak: garaże i wiaty wolnostojące, drogi, podjazdy, ogrodzenia, baseny itp.
