Opis projektu
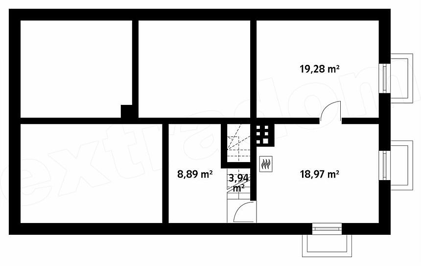
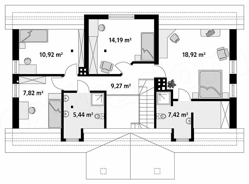
Dom parterowy z poddaszem użytkowym, podpiwniczony, dla 4 – 5-osobowej rodziny. Na parterze zaprojektowano pomieszczenia tzw. strefy dziennej: pokój, dużą jadalnię, kuchnię i łazienkę. Na poddaszu znajdują się pomieszczenia strefy nocnej – cztery sypialnie i dwie łazienki.
