Opis projektu
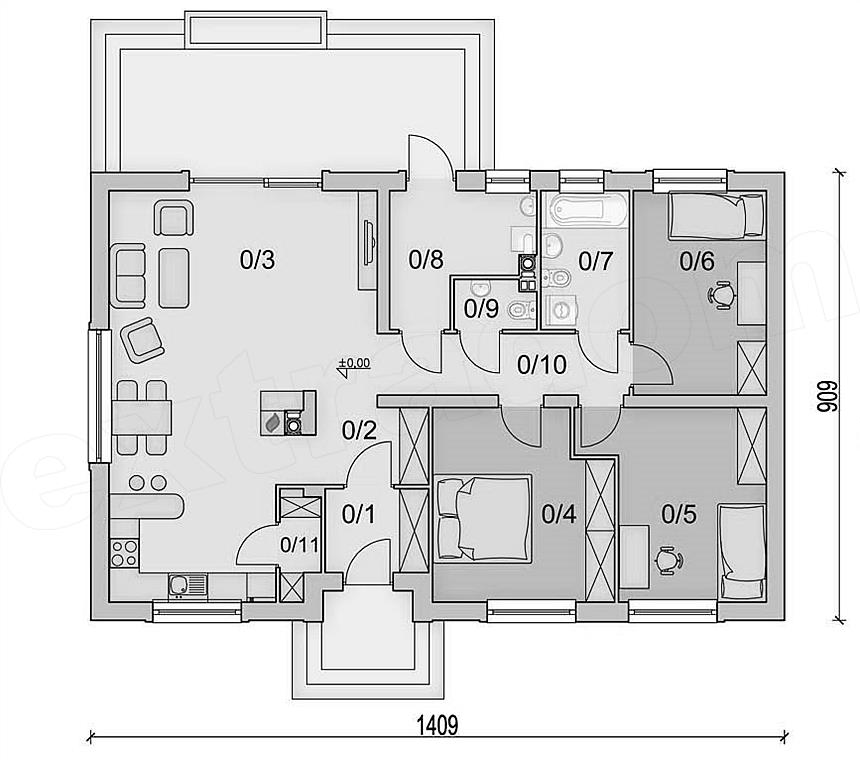
Sezam 2 to bardzo ciekawa propozycja domu parterowego przeznaczonego dla 4-5 osobowej rodziny. Dom posiada prostą formę i nieskomplikowaną konstrukcję, co zdecydowanie ułatwi budowę. Mimo niewielkich rozmiarów , dzięki dobrze zagospodarowanej przestrzeni, Sezam 2 będzie bardzo wygodny w użytkowaniu. Niewątpliwym atutem projektu jest jasny podział na strefę ogólnodostępną i prywatną - przeznaczoną tylko dla mieszkańców. Dom posiada duży otwarty salon, oraz kuchnię ze spiżarnią. Nie zapomniano również o pomieszczeniu gospodarczym z wyjściem na ogród, oraz dodatkowej łazience. W wiatrołapie i holu przewidziano miejsce na szafy w zabudowie. W projekcie zastosowano wyłącznie typowe i sprawdzone rozwiązania, co znacznie zminimalizuje koszty budowy i eksploatacji.
