Opis projektu
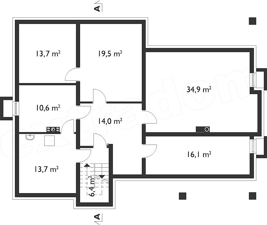
Rodzina Reginy to projekt domu parterowego dla 4 osób, o pow. ok 120m2, bez garażu w kilku rozwiązaniach. Wszystkie mają bryłę na planie prostokąta, okrojonego od frontu i od ogrodu tarasami z głębokimi okapami na słupach. Wnęki obejmują otwartą na hol część dzienną mieszkania z wyjątkowo dużym salonem. Projekt domu Regina Ultra proponuje przesłonięcie kuchni ze spiżarnią kominkiem i jest wariantem z piwnicą. Zlokalizowano w niej szereg pomieszczeń gospodarczych z dużą kotłownią. Strefa prywatna z dużą łazienką położona jest w głębi holu i odseparowana od części wejściowej zespołem małej łazienki oraz klatki schodowej. Rodzina Reginy to budynki z czterospadowym dachem, z kalenica równoległą do drogi dojazdowej. Proponują różne warianty nachylenia połaci i wykorzystania poddasza. Projekt Regina Ultra, ze spadkiem 35°, oferuje nad parterem przestrzeń użytkową, możliwą do wykorzystania, dzięki klatce schodowej, np. w drugim etapie budowy. Stosunkowo stromy dach decyduje o tradycyjnym charakterze sylwetki. Elewacje skomponowano podkreślając drewnianą boazerią wnęki podcieni, a ryzalit jadalni i słupy okładzina kamienną.
