Opis projektu
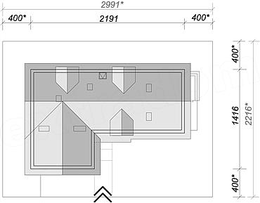
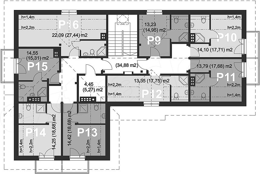
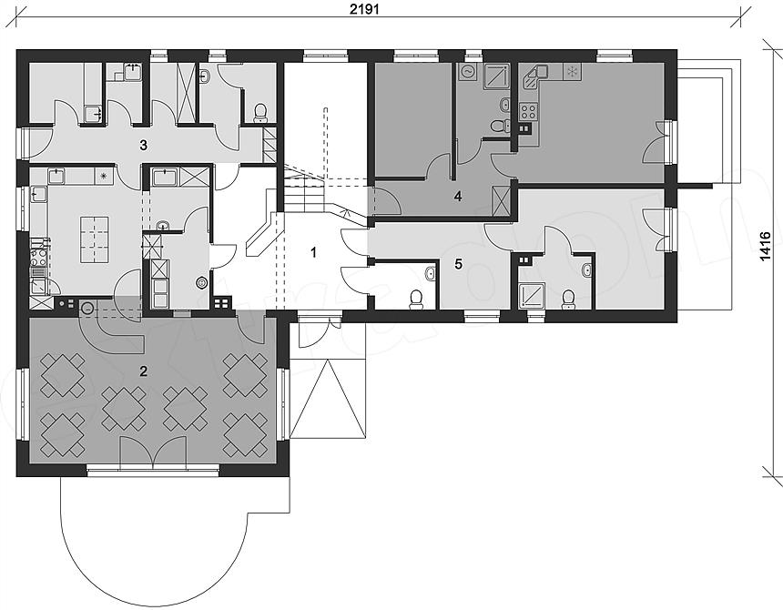
Mały pensjonat o siedemnastu pokojach gościnnych z łazienkami, bez podpiwniczenia, dwie kondygnacje nadziemne i poddasze w stromym dachu, funkcja: na parterze - hol wejściowy z recepcją, klatka schodowa, wc, kuchnia, chłodnia, zmywalnia, magazyny kuchenne, jadalnia, kotłownia, apartament dla osoby niepełnosprawnej (dwa pokoje + łazienka), samodzielne mieszkanie; na piętrze - osiem pokoi z węzłami sanitarnymi, klatka schodowa, pomieszczenie gospodarcze; na poddaszu - osiem pokoi z węzłami sanitarnymi, klatka schodowa, magazyn pościeli; Projekt niewielkiego pensjonatu o nieco alpejskiej architekturze. Sporej bryle delikatności dodają ażurowe, drewniane balustrady balkonów. Wygodnie zaplanowane pokoje z łazienkami i przestronna jadalnia z wyjściem na taras to gotowy wzór dla miejsca, gdzie goście będą chętnie przyjeżdżać i komfortowo wypoczywać.
