Opis projektu
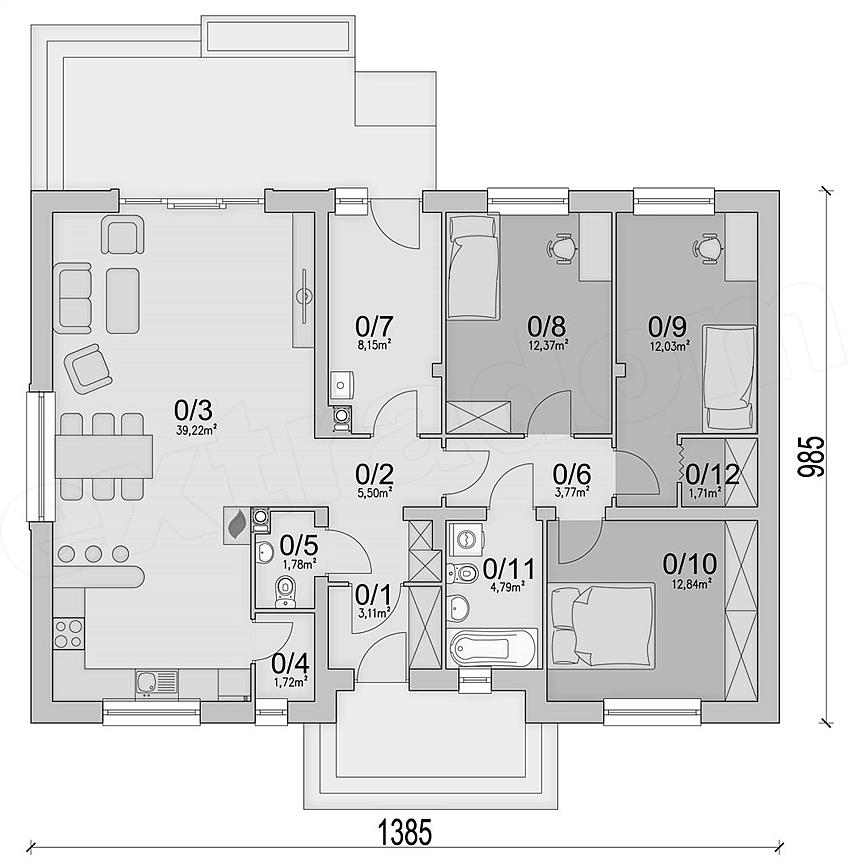
Mokka to energooszczędny, mały uroczy dom parterowy, który świetnie wpisuje się w każde otoczenie, a zarazem posiada swój oryginalny styl. Dzięki bardzo prostej formie jest tani i łatwy w budowie. Mimo niewielkiego rozmiaru oferuje bardzo rozbudowaną funkcję i wygodę użytkowania. Istotną cecha projektu jest podział na strefę dzienną i nocną. W tej pierwszej zlokalizowano przestronny salon z jadalnią, oraz dużą kuchnię ze spiżarnią. Dom posiada również wiatrołap z miejscem na szafę, oraz dodatkową toaletę. Ważnym elementem każdego domu, bez garażu, jest pomieszczenie gospodarcze z bezpośrednim wyjściem na ogród. W części nocnej zaprojektowano trzy komfortowe sypialnie, łazienkę i garderobę. Aby można było wykorzystać poddasze, w korytarzu zaprojektowano otwór w stropie na schody spuszczane. Zastosowano również małą ścianę kolankową, aby podnieść okap dachu i umożliwić lepsze doświetlanie wnętrza. W trosce o naturalne środowisko i niskie zużycie energii, dom oferuje wiele rozwiązań energooszczędnych. Projekt zawiera rozbudowany pakiet instalacji w skład, których wchodzi: projekt ogrzewania na paliwo stałe- biomasę, projekt ogrzewania gazowego wraz z opcjonalną wentylacją mechaniczną , oraz schemat instalacji solarnych. Na etapie adaptacji, inwestor może wybrać najbardziej odpowiednią dla siebie opcję. Prosta bryła i nieskomplikowana konstrukcja, zdecydowanie ułatwią i przyspieszą realizację. Aby zapewnić niskie koszty eksploatacji i nie zwiększać kosztów budowy, w projekcie zastosowano rozwiązania energooszczędne na poziomie ekonomicznie uzasadnionym. Projekt Mokka dostępny jest również w wersji ze stropem gęstożebrowym oraz drewnianym
