Opis projektu
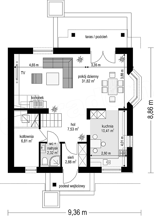
Projekt domu Michałek to śliczny domek jednorodzinny – zrealizowany jako „braciszek” projektu „ Michalina ” - oba domy mają podobną wielkość i rozplanowanie wnętrza , różną się kształtem dachu). Michałek został zaprojektowany jako wygodny dom dla czteroosobowej rodziny - jest parterowy z poddaszem użytkowym. Na parterze przewidziano obszerną część dzienną, z salonem, aneksem jadalnym, ładną – częściowo otwartą kuchnią, holem i dużą kotłownią. Na poddaszu mieszczą się trzy sypialnie i wygodna łazienka. Tradycyjna bryła budynku, zbudowana na planie kwadratu, została przekryta dwuspadowym dachem, z lukarnami. Elewację frontową urozmaica zadaszenie nad wejściem, wsparte na kolumnie i zastrzale. Elewację ogrodową ozdabiają: lukarna z balkonikiem i zadaszenie tarasu podparte kolumnami. Architektura domu jest spokojna i skromna, jednocześnie zachowane zostały właściwe proporcje bryły. Projekt domu Michałek to doskonała propozycja dla Inwestorów szukających niedużego, wygodnego domu dla swojej rodziny, biorących pod uwagę oszczędność kosztów, prostotę budowy i niewielki koszt utrzymania domu. Pracownia posiada wersję odbicia lustrzanego projektu.

 
  
  
             
                        
					