Opis projektu
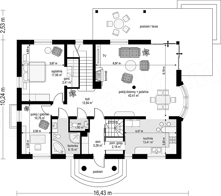
Projekt domu Hetman to domek jednorodzinny dla rodziny cztero-siedmioosobowej z możliwością zamieszkania rodziny wielopokoleniowej - dzieci, rodziców i dziadków. Budynek jest parterowy z poddaszem użytkowym przykrytym czterospadowym dachem. W częściowym podpiwniczeniu umieszczono zaplecze gospodarcze. Projekt domu Hetman, swoją bryłą z symetrycznymi elewacjami nawiązuje do polskiego dworku, ale we współczesnym ujęciu. Przełamanie monotonii osiowego podziału wnętrz choćby przez narożne otwarcie salonu na ogród czy częściowo zadaszony taras, daje ciekawy architektonicznie efekt. Elementy te nadają domowi Hetman oryginalną, niepowtarzalną formę, nie wpływając przy tym na zwiększenie kosztów budowy. Cały dom architektonicznie podporządkowano układowi funkcjonalnemu wnętrza. Na parterze zaprojektowano część dzienną z otwartą przestrzenią pokoju dziennego z częścią jadalną i holu, oraz częściowo otwartą kuchnią. Po drugiej stronie umieszczono dwa pokoje i oddzielną łazienkę. Pokoje mogą pełnić rolę osobnego mieszkania seniorów, lub spełniać funkcję dodatkowych pomieszczeń - gabinetu, czy sypialni dla gości. Otwarcie salonu na taras i ogród narożnymi drzwiami doda uroku temu dużemu wnętrzu. Na poddaszu zaplanowano cztery sypialnie i dwie łazienki. Jeden z pokoi może być sypialnią rodziców z garderobą i własną łazienką. Do piwnicy, w której zaprojektowano duże otwarte pomieszczenie techniczne schodzi się schodami dostępnymi z sieni na parterze. Częściowe zadaszenie tarasu pozwoli korzystać z niego również przy niepogodzie, lub zbyt dużym nasłonecznieniu. Pracownia posiada również wersję odbicia lustrzanego projektu domu Hetman.
