Opis projektu
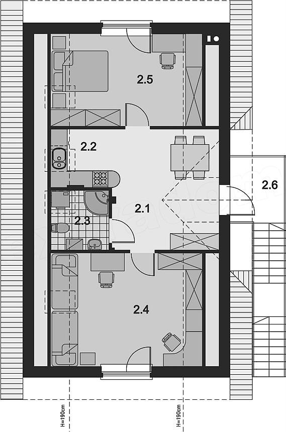
Garaż 3-stanowiskowy, wolnostojący, w technologii murowanej z dachem dwuspadowym. Wymiary wewnętrzne: szerokość 6,66 m, długość 11,96 m. Wielkość bram garażowych 260 x 224 cm. W budynku zaprojektowano kotłownię z wydajnym piecem na PALIWO STAŁE - biomasę. Dodatkowym atutem jest poddasze użytkowe nad garażem, do którego prowadzą schody zewnętrzne. Powierzchnię ponad 60 m2 podzielono na 2 pokoje, łazienkę oraz aneks kuchenny. Można ją przeznaczyć na pracownię, mieszkanie pod wynajem lub lokum dla gości. Uwaga! Dokumentacja Projektowa nie zawiera elementów małej architektury takich jak: donice, podesty, altany, grille ogrodowe, murki, pergole, a także innych elementów wizualizacji, takich jak: garaże i wiaty wolnostojące, drogi, podjazdy, ogrodzenia, baseny itp.
