Projekt domu G35 - Budynek garażowy PRA1034

kontakt - projekty domów | projektydomow.domiporta.pl

Joanna Skoczylas - Kunda

Porady, oferty, zamówienia

Jak zamówić projekt?

22 451 01 70

pn-pt 8-22, sb 10-18

Pow. użytkowa 138,12 m2 Kubatura 802,5 m3 Wysokość domu 5,82 m
Pow. zabudowy 150 m2 Min. szer. działki 21 m Kąt nach. dachu 5 st
Projekt domu G35 - Budynek garażowy progress

Opis projektu

Projekt garażu trzystanowiskowego, parterowego, niepodpiwniczonego, przeznaczonego dla samochodów dostawczych.

Kup teraz projekt

Cena: 1590 zł

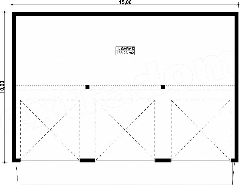
Rzut kondygnacji projektu G35 - Budynek garażowy - Rzut parteru

1 garaż wielostanowiskowy: 138,12 m2

Przekrój

Technologia budowy domu


Budynek wykonany w technologii tradycyjnej. Ściany murowane z bloczków z betonu komórkowego grubości 24cm. Bramy o wymiarach 4,00×4,00m. Słupy i podciągi – żelbetowe. Więźba dachowa jednospadowa, drewniana, pokryta blachą trapezową.

Elewacje

autor: Kup Projekt

Projekty podobne do G35 - Budynek garażowy PRA1034

Serwis prowadzi Extradom.plRegulaminPolityka prywatności