Projekt domu G1m szkielet drewniany, garaż dwustanowiskowy z pomieszczeniem gospodarczym SLN2347

kontakt - projekty domów | projektydomow.domiporta.pl

Joanna Skoczylas - Kunda

Porady, oferty, zamówienia

Jak zamówić projekt?

22 451 01 70

pn-pt 8-22, sb 10-18

Pow. użytkowa 78,12 m2 Kubatura 372 m3 Wysokość domu 5,25 m
Pow. zabudowy 87,5 m2 Min. szer. działki 14 m Kąt nach. dachu 30 st
Projekt domu G1m szkielet drewniany, garaż dwustanowiskowy z pomieszczeniem gospodarczym progress

Opis projektu

Garaż dwustanowiskowy z pomieszczeniem gospodarczym w technologii szkieletowej, wolnostojący, parterowy.

Kup teraz projekt

Cena: 1090 zł

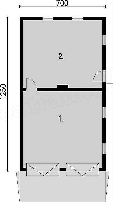
Rzut kondygnacji projektu G1m szkielet drewniany, garaż dwustanowiskowy z pomieszczeniem gospodarczym - Rzut parteru

1 garaż dwustanowiskowy: 35,94 m2
2 pomieszczenie gospodarcze: 42,18 m2

Koszt budowy domu


Orientacyjny koszt budowy domu w stanie surowym zamkniętym bez instalacji: 75 995 zł.

Technologia budowy domu


Technologia szkieletowa:- powierzchnia użytkowa - 78,12m2 - powierzchnia zabudowy - 87,50m2 - powierzchnia całkowita - 87,50m2 - ściany zewnętrzne i wewnętrzne w technologi szkieletowej. - wysokość budynku 5,25m.- dach płaski jednospadowy 30°- więźba dachowa drewniana o układzie krokwiowo-jętkowym.- pokrycie dachowe : dachówka ceramiczna. Technologia murowana - zobacz

Elewacje

autor: Pro arte Arkadiusz Woch, Krzysztof Biodrowicz spółka jawna

Projekty podobne do G1m szkielet drewniany, garaż dwustanowiskowy z pomieszczeniem gospodarczym SLN2347

Serwis prowadzi Extradom.plRegulaminPolityka prywatności