Projekt domu G1m garaż dwustanowiskowy z pomieszczeniem gospodarczym SLN1102

kontakt - projekty domów | projektydomow.domiporta.pl

Joanna Skoczylas - Kunda

Porady, oferty, zamówienia

Jak zamówić projekt?

22 451 01 70

pn-pt 8-22, sb 10-18

Pow. użytkowa 75,39 m2 Kubatura 365,75 m3 Wysokość domu 5,2 m
Pow. zabudowy 87,5 m2 Min. szer. działki 14 m Kąt nach. dachu 30 st
Pow. dachu 134 m2
Projekt domu G1m garaż dwustanowiskowy z pomieszczeniem gospodarczym progress

Opis projektu

Garaż dwustanowiskowy z pom. gospodarczym.Dwie bramy garażowe o wymiarach 2,75x2,2 m.

Kup teraz projekt

Cena: 1090 zł

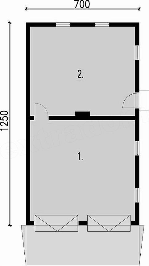
Rzut kondygnacji projektu G1m garaż dwustanowiskowy z pomieszczeniem gospodarczym - Rzut parteru

1 garaż dwustanowiskowy: 40,24 m2
2 pomieszczenie gospodarcze: 35,15 m2

Koszt budowy domu


Orientacyjny koszt budowy domu w stanie surowym zamkniętym bez instalacji: 92 639 zł.

Technologia budowy domu


Ściany zewnętrzne nośne murowane grubości 25cm. Wszystkie ściany wykonane z pustaków ceramicznych. Więźba dachowa drewniana. Pokrycie dachówka cementowa badź ceramiczna.

Elewacje

autor: Pro arte Arkadiusz Woch, Krzysztof Biodrowicz spółka jawna

Projekty podobne do G1m garaż dwustanowiskowy z pomieszczeniem gospodarczym SLN1102

Serwis prowadzi Extradom.plRegulaminPolityka prywatności