Opis projektu
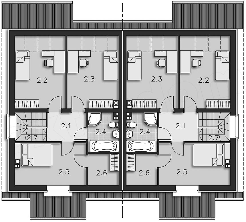
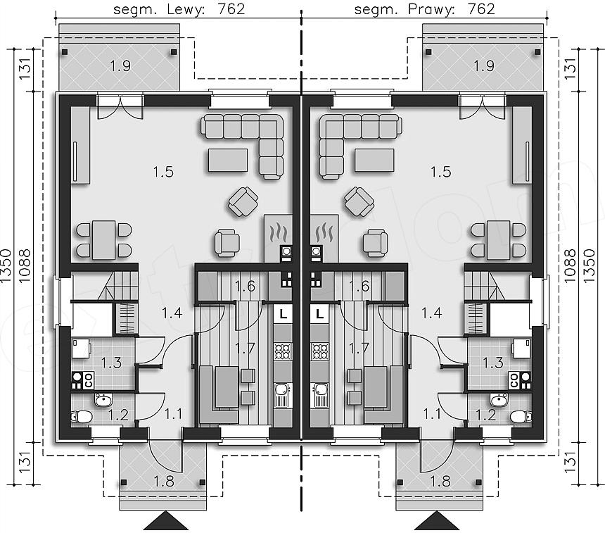
Typowy dom bliźniaczy funkcjonalnie zaplanowany dla 4-osobowej rodziny. Dom ten charakteryzuje się prostą architekturą i nieskomplikowanymi rozwiązaniami konstrukcyjnymi, co znacznie obniża koszty realizacji. Na parterze znajduje się duży salon, kuchnia z kątem do jedzenia i praktyczną spiżarką, pom. gospodarcze, w którym został umieszczony dwufunkcyjny kocioł gazowy oraz toaleta dostępna z wiatrołapu. Na poddaszu są trzy pokoje, w tym jeden z garderobą, oraz łazienka doświetlona światłem naturalnym poprzez świetlik rurowy. Dom można również zestawiać w zabudowę szeregową Orlando (LMS01). Dostępna jest wersja projektu z garażem.Projekt domu dostępny w zabudowie bliźniaczej lub jako jednorodzinny dwulokalowy.
