Projekt domu E-118 WAX1020

kontakt - projekty domów | projektydomow.domiporta.pl

Joanna Skoczylas - Kunda

Porady, oferty, zamówienia

Jak zamówić projekt?

22 451 01 70

pn-pt 8-22, sb 10-18

Pow. użytkowa 146,7 m2 Kubatura 536,4 m3 Wysokość domu 7,3 m
Pow. zabudowy 241,2 m2 Min. szer. działki 23,9 m Kąt nach. dachu 30 st
Pow. dachu 330 m2
Projekt domu E-118 progress

Opis projektu

Projekt komfortowego domu E-118 należy do rodziny projektów E-114 do E-119. Prosta bryła połączona z uniwersalnym układem funkcjonalnym i dwustanowiskowym garażem. W części dziennej zaplanowano duży salon z jadalnią (szerszy o 60cm w stosunku do E-115/116) i półotwartą kuchnię ze spiżarnią. W części sypialnej: cztery sypialnie, WC oraz duża łazienka z wanną i prysznicem. Wysokość pomieszczeń parteru wynosi 2,95 m. Atutem domu jest też duża garderoba. Na poddaszu pokazujemy powierzchnię możliwą do zaadaptowania. Dla zobrazowania jej wielkości, na rysunku podano powierzchnię netto poddasza, tj. po obrysie ścian.

Kup teraz projekt

Cena: 6190 zł

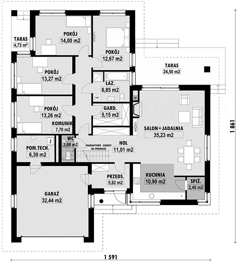
Rzut kondygnacji projektu E-118 - Rzut parteru

1 wiatrołap: 5,62 m2
2 kuchnia: 10,9 m2
3 spiżarnia: 2,45 m2
4 pokój dzienny + jadalnia: 35,23 m2
5 hall: 11,01 m2
6 korytarz: 7,7 m2
7 garderoba: 5,15 m2
8 łazienka: 6,85 m2
9 pokój: 12,67 m2
10 pokój: 14 m2
11 pokój: 13,27 m2
12 pokój: 13,26 m2
13 wc: 2,09 m2
14 pomieszczenie gospodarcze: 6,3 m2
15 garaż dwustanowiskowy: 32,44 m2
16 taras: (24,5 m2)

Rzut kondygnacji projektu E-118 - Rzut poddasza

1 poddasze do adaptacji: 75,57 m2

Usytuowanie domu na działce

Koszt budowy domu


Orientacyjny koszt budowy domu w stanie surowym zamkniętym bez instalacji: 465 100 zł.

Technologia budowy domu


Ściany: 25cm ceramika + 18cm styropian. Strop: wylewany żelbetowy. Pokrycie dachowe: dachówka cementowa. Ocieplenie posadzki na gruncie: 20cm styropian. Ocieplenie dachu: 25-30cm wełna mineralna. Stolarka okienna: drewniana. Wykończenie zewnętrze: kamień, płytki klinkierowe lub drewno. Ogrzewanie: gazowe, grzejniki. Wentylacja: grawitacyjna.

Elewacje

autor: E-domy

Projekty podobne do E-118 WAX1020

Serwis prowadzi Extradom.plRegulaminPolityka prywatności