Opis projektu
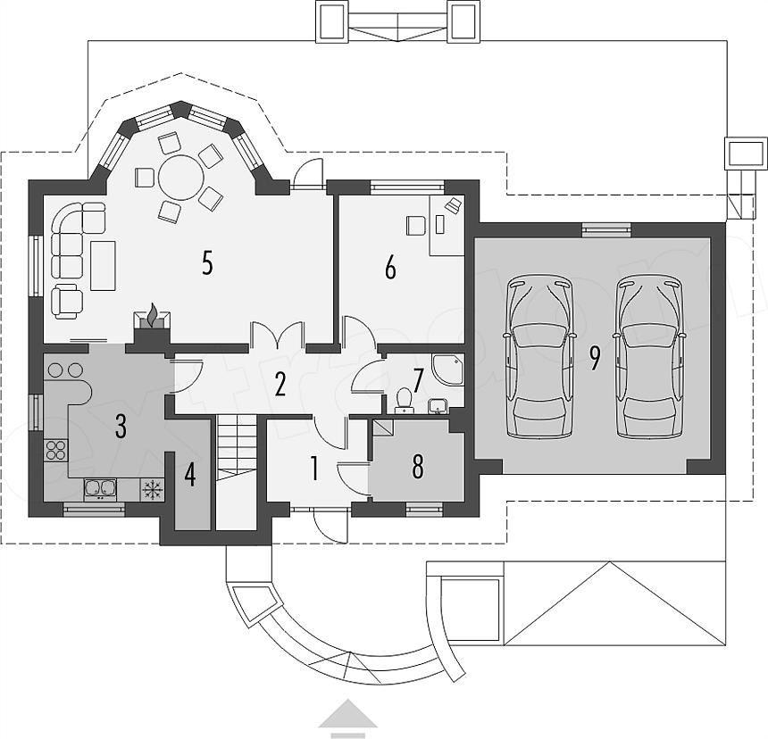
Dora G2 to przytulny dom o atrakcyjne bryle z charakterystycznym wykuszem w formie wieżyczki, w którym zlokalizowano jadalnię. Wnętrze zostało funkcjonalnie rozplanowane, a przestronne pomieszczenia zapewniają mieszkańcom wygodę i komfort.
