Opis projektu
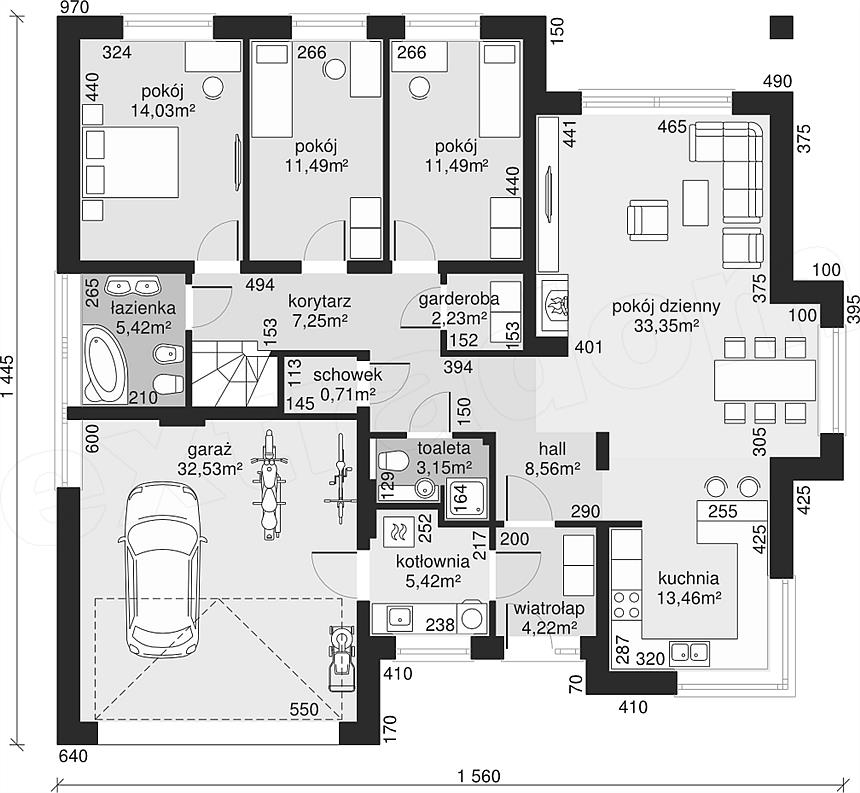
Dom przy Pastelowej 2 to nowoczesny dom parterowy z dwustanowiskowym garażem. Prezentuje inteligentne połączenie formy i komfortu mieszkania. Nieskomplikowana bryła nakryta czterospadowym dachem oraz jasne i proste elewacje sprawiają, że budynek dobrze wtapia się w otoczenie. Funkcjonalnie zaprojektowane wnętrze zapewnia wygodę czteroosobowej rodzinie. Po prawej stronie otwarta kuchnia, jadalnia i duży salon z wyjściem do ogrodu tworzą część dzienną. Po lewej stronie, w wydzielonej części prywatnej, znajdują się trzy sypialnie, łazienka i garderoba.
