Opis projektu
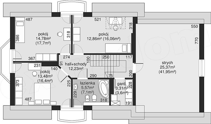
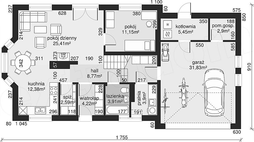
Dom przy Modrzewiowej 14 to ciekawa propozycja domu z mieszkalnym poddaszem, wyraźnie wydzieloną częścią dzienną na parterze oraz prywatną na poddaszu. Na parterze znajduje się obszerny, połączony z jadalnią i kuchnią salon, z którego prowadzi wyjście na taras. Dodatkowy pokój może być gabinetem lub sypialnią dla gości. Bogato zaprojektowany parter uzupełniają spiżarnia, łazienka, pralnia i dwustanowiskowy garaż. Za garażem zlokalizowano kotłownię oraz dodatkowe pomieszczenie gospodarcze. Na poddaszu znajdują się trzy wygodne sypialnie, łazienka, garderoba oraz zaprojektowany nad garażem strych. Jasna elewacja doskonale kontrastuje z paloną na czerwono dachówką, co nadaje całości eleganckiego charakteru willi.
