Projekt domu Dom przy Alabastrowej 7 KRK1303

kontakt - projekty domów | projektydomow.domiporta.pl

Joanna Skoczylas - Kunda

Porady, oferty, zamówienia

Jak zamówić projekt?

22 451 01 70

pn-pt 8-22, sb 10-18

Pow. użytkowa 150 m2 Kubatura 798,17 m3 Wysokość domu 8,48 m
Pow. zabudowy 156,54 m2 Min. szer. działki 25,55 m Kąt nach. dachu 40 st
Pow. dachu 195,37 m2
Projekt domu Dom przy Alabastrowej 7 progress

Opis projektu

Dom przy Alabastrowej 7 to kolejny ciekawy projekt z kolekcji nowoczesnych Domów przy Alabastrowej. Widoczna różnica w stosunku do poprzedniej wersji to zdecydowanie większa powierzchnia domu (150 m2) oraz dwustanowiskowy garaż. Wprowadzone modyfikacje, przy zachowaniu dotychczasowego układu funkcjonalnego, jeszcze bardziej zwiększają komfort mieszkania. Na parterze znajduje się duży pokój dzienny, otwarta kuchnia ze spiżarnią, dodatkowy pokój, łazienka, pomieszczenie gospodarcze i kotłownia połączona z garażem. Na poddaszu zaplanowano sypialnię dla rodziców z wyjściem na duży taras, dwa pokoje dla dzieci, garderobę oraz łazienkę z pralnią.

Kup teraz projekt

Cena: 3890 zł

Rzut kondygnacji projektu Dom przy Alabastrowej 7 - Rzut parteru

1 wiatrołap: 5,05 m2
2 hall: 10,63 m2
3 pokój dzienny: 27,06 m2
4 kuchnia: 13,04 m2
5 spiżarnia: 1,73 m2
6 pomieszczenie gospodarcze: 3,61 m2 (4,96 m2)
7 pokój: 11,43 m2
8 łazienka: 4,16 m2
9 kotłownia: 10,47 m2
10 garaż dwustanowiskowy: 33,85 m2

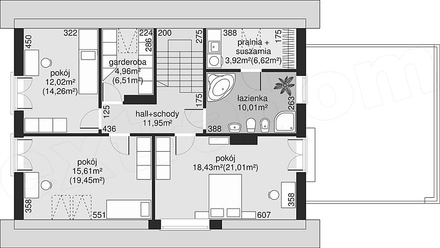
Rzut kondygnacji projektu Dom przy Alabastrowej 7 - Rzut poddasza

11 korytarz + schody: 11,95 m2
12 pomieszczenie gospodarcze: 3,92 m2 (6,62 m2)
13 łazienka: 10,01 m2
14 pokój: 18,43 m2 (21,01 m2)
15 pokój: 15,61 m2 (19,45 m2)
16 pokój: 12,02 m2 (14,26 m2)
17 garderoba: 4,96 m2 (6,51 m2)

Usytuowanie domu na działce

Przekrój

Technologia budowy domu


Ściany zewnętrzne: pustak 25 cm, styropian 20 cm. Ściany nośne: pustak 25 cm. Strop: monolityczny żelbetowy. Dach: kąt nachylenia 40°, pokrycie - dachówka ceramiczna lub betonowa. Instalacja solarna.

Elewacje

autor: GALERIADOMOW.PL

Projekty podobne do Dom przy Alabastrowej 7 KRK1303

Serwis prowadzi Extradom.plRegulaminPolityka prywatności