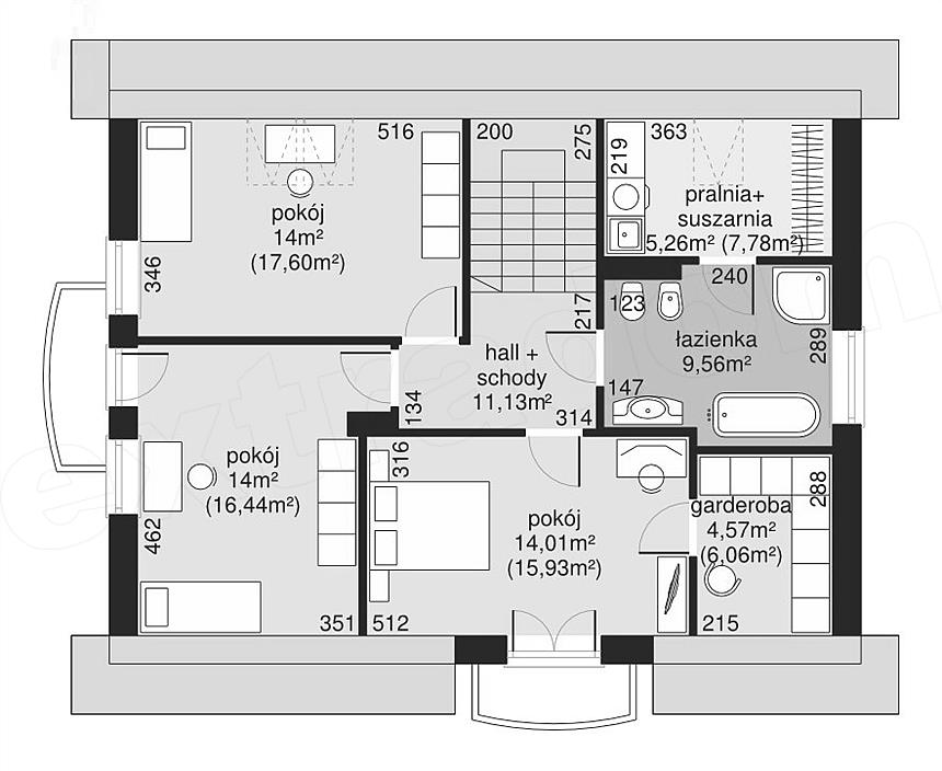
Opis projektu
Rodzina gotowych projektów domów z kolekcji Dom przy Alabastrowej zawiera zróżnicowane wielkościowo i stylistycznie warianty projektów domów. 120-metrowy Dom przy Alabastrowej 34 jest powiększonym wariantem sprawdzonego 100-metrowego projektu Dom przy Alabastrowej 21. W ramach tego samego programu użytkowego opracowane zostały także warianty: 135-metrowy Dom przy Alabastrowej 35 i 150-metrowy Dom przy Alabastrowej 36. Projekty są spójne stylistycznie i estetycznie. Dom przy Alabastrowej 34 jest średniej wielkości domem, mieszczącym się na niewielkich działkach budowlanych. Zastosowany rozkład pomieszczeń jest praktyczny i wygodny w użytkowaniu.
