Opis projektu
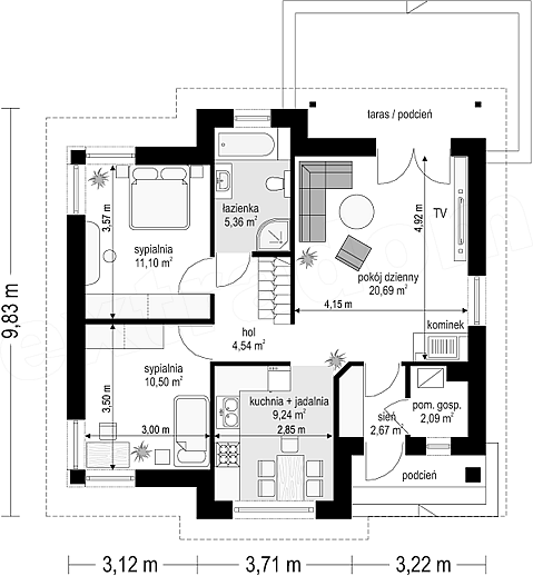
Projekt domu Cypisek to propozycja niewielkiego domku jednorodzinnego dla 3-4osobowej rodziny. Cypisek to dom o prostokątnej bryle, przekrytej dwuspadowym, symetrycznym dachem. Prostą bryłę ozdobiono ciekawymi detalami, jak zadaszony wykusz kuchenny, narożny podcień wejściowy z kolumienką, narożne okna sypialni, czy podcień ogrodowy nad tarasem. Dobrane ze smakiem, nowoczesne materiały i kolorystyka w połączeniu z tradycyjną bryłą dają niepowtarzalny efekt. Wnętrze domku to trzypokojowe, wygodne mieszkanie, z dodatkowym przedsionkiem wejściowym i kotłownią. Salon wzbogacono o narożny kominek widoczny z każdego miejsca części dziennej i szerokie przeszklone drzwi otwierające dom na taras i ogród. Nieużytkowy strych nad parterem można dość łatwo zaadaptować na dodatkowe poddasze. Pracownia posiada także projekt Cypisek w odbiciu lustrzanym.
