Projekt domu Belfast DCP268 WOB1144

kontakt - projekty domów | projektydomow.domiporta.pl

Joanna Skoczylas - Kunda

Porady, oferty, zamówienia

Jak zamówić projekt?

22 451 01 70

pn-pt 8-22, sb 10-18

Pow. użytkowa 103,83 m2 Kubatura 635,57 m3 Wysokość domu 6,99 m
Pow. zabudowy 110,06 m2 Min. szer. działki 15,2 m Kąt nach. dachu 2 st
Pow. dachu 56,26 m2 EUco 24,98 kWh/(m2*rok)
Projekt domu Belfast DCP268 progress

Opis projektu

Piętrowy dom energooszczędny, idealna propozycja dla miłośników nowoczesności. Jasna, prosta bryła ozdobiona została elementami z drewna i stali. Duże przeszklenia nadają wnętrzu przestronności i doskonale je doświetlają. Na parterze zaplanowano połączoną z salonem kuchnię, spiżarnię, sypialnię, łazienkę i pomieszczenie gospodarcze. Piętro mieści 3 sypialnie, garderobę i wygodną łazienkę. W bryłę domu wkomponowano garaż na dwa auta, na dachu którego znajduje się wygodny taras. Dom doskonale nadaje się na wąską działkę.

Kup teraz projekt

Cena: 5170 zł

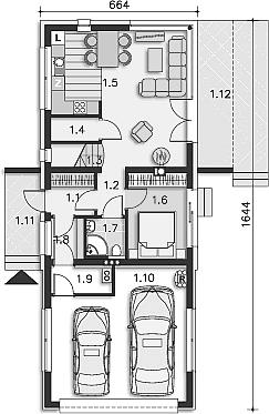
Rzut kondygnacji projektu Belfast DCP268 - Rzut parteru

1 wiatrołap: 3,27 m2
2 korytarz: 2,27 m2
3 schody: 2,11 m2
4 spiżarnia: 1,05 m2 (2,03 m2)
5 pokój dzienny + kuchnia: 28,23 m2
6 pokój: 8,99 m2
7 łazienka: 2,75 m2
8 pomieszczenie gospodarcze: 2,41 m2
9 kotłownia: 2,8 m2
10 garaż dwustanowiskowy: 29,07 m2
11 taras: (5,28 m2)
12 taras: (18,96 m2)

Rzut kondygnacji projektu Belfast DCP268 - Rzut 1 piętra

1 korytarz: 4,72 m2
2 pokój: 10,68 m2
3 pokój: 9,27 m2
4 garderoba: 2,92 m2
5 pokój: 11,15 m2
6 łazienka: 9,85 m2
7 schody: 4,16 m2
8 taras: (32,36 m2)

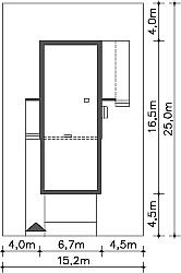
Usytuowanie domu na działce

Przekrój

Koszt budowy domu


Orientacyjny koszt budowy domu w stanie surowym zamkniętym bez instalacji: 318 900 zł.

Technologia budowy domu


Fundamenty - płyta fundamentowa. Ściany zewnętrzne - Bloczek silikatowy 24 cm + styropian 20 cm. Strop - gęstożebrowy. Dach - stropodach gęstożebrowy. Ogrzewanie - c.o. podłogowe + c.w.u. - pompa ciepła ze źródłem dolnym. Wentylacja - rekuperacja.

Elewacje

autor: Lipińscy Domy Biuro Projektowe , dr inż. arch. Ludwika Juchniewicz-Lipińska, dr inż. arch. Miłosz Lipiński

Projekty podobne do Belfast DCP268 WOB1144

Serwis prowadzi Extradom.plRegulaminPolityka prywatności