Opis projektu
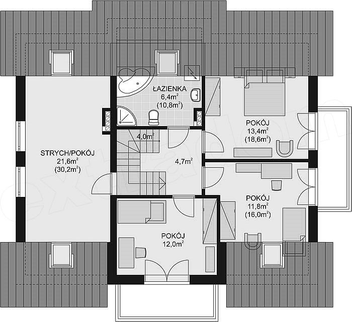
Elegancki dom z poddaszem użytkowym o ciekawie i nowocześnie ukształtowanej elewacji i funkcjonalnym wnętrzu dla 4-6 osobowej rodziny. Strefa dzienna zajmuje całą głębokość domu i daje możliwość podziału na osobne pomieszczenia. Kuchnia od frontu sąsiaduje z jadalnią w przeszklonym wykuszu. W głębi domu - wygodny salon z kominkiem i wyjściem na taras. Dodatkowy pokój obok salonu ma również wyjście na taras. Efektowne schody prowadzą na poddasze gdzie znajdują się trzy obszerne sypialnie oraz duży salon łazienkowy. Na półpiętrze nad garażem znajduje się dodatkowa przestrzeń, którą można przeznaczyć na siłownię lub domowe spa. Zobacz także projekty: APS 229, APS 231, APS 233.
