Opis projektu
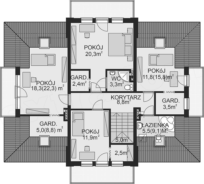
Okazały, reprezentacyjny dom o klasycznej urodzie i wygodnym układzie pomieszczeń dla 5-7 osobowej rodziny. Wejście do domu podkreślone balkonem z kolumnami, prowadzi przez wiatrołap do centralnego hallu. Od frontu znajduje się duża kuchnia, sąsiadująca z równie okazałą jadalnią. Jadalnia tworzy jedno wnętrze z obszernym pokojem dziennym, którego przestronność podkreśla brak zdecydowanego oddzielenia od innych pomieszczeń. Wyjście na taras przez szerokie przeszklone drzwi, ułatwia korzystanie z ogrodu w ciepłych porach roku. Obok - drugi mniejszy pokój gościnny lub gabinet z oddzielną łazienką, może być przewidziany dla starszego pokolenia w rodzinie wielopokoleniowej. Równie obszerne poddasze mieści cztery wygodne sypialnie, każda z garderobą i balkonem, oraz dwie łazienki. Dla osób przyzwyczajonych do tradycyjnego podziału pomieszczeń istnieje możliwość oddzielenia pokoi drzwiami.
