Opis projektu
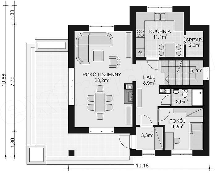
Wygodny, ekonomiczny dom, o atrakcyjnej sylwetce i funkcjonalnym wnętrzu, zaprojektowany dla 4-5 osobowej rodziny. Wejście do domu osłonięte daszkiem prowadzi do przedsionka z szafą ubraniową i dalej do centralnie usytuowanego hallu. Foremny, duży pokój dzienny, z kominkiem zawiera obszerną część wypoczynkową. Razem z jadalnią i wygodną kuchnią, stanowią dla mieszkańców przyjazną strefę dzienną. Dodatkowy pokój lub gabinet znajduje się obok wejścia. Na poddaszu mieszczą się: trzy obszerne sypialnie, praktyczne garderoby i łazienka z wydzieloną pralnią/suszarnią. W piwnicy - kotłownia i pomieszczenia gospodarcze. Rozmiary domu pozwalają na lokalizację na niezbyt dużej działce.
